Choegyal TENZIN Négociateur
Télécharger la fiche
Exclusivité Nouveauté

Appartement 3 pièce(s) 2 chambre(s) 57.47 m²

Paris (75010)
478 400 € Référence 0031

A propos de ce bien

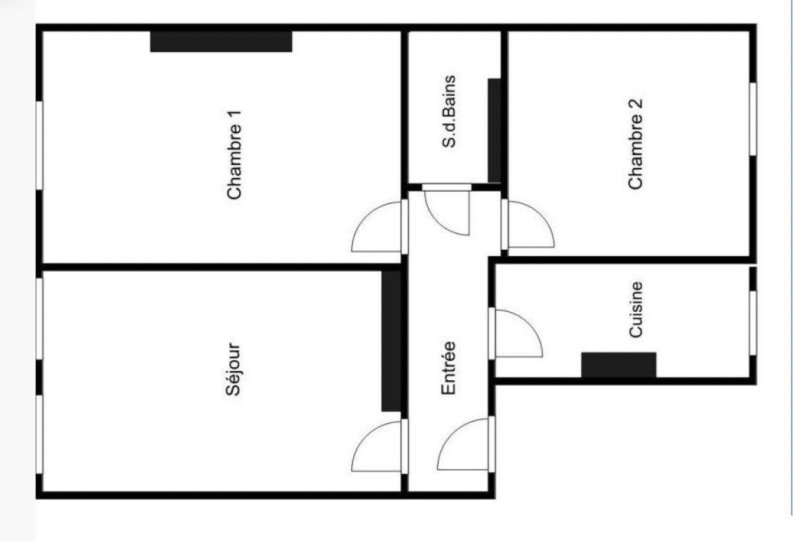
EXCLUSIVITÉ À vendre dans le 10e arrondissement de Paris (75010) : appartement de 58,03 m Carrez au 3e étage d'un immeuble. Cet appartement de 3 pièces double orentation, dispose d'un séjour,deux chambres, d'une cuisine aménagée et d'une salle de bains. En annexe, il y a deux caves. À proximité : RER (Magenta - ligne E - et Gare Du Nord - lignes, metro 2 la chapelle, D et B), bus, gares, métros, établissements scolaires, marchés, cinémas, restaurants, bureaux de poste, théâtres et conservatoire. Autoroutes et nationales accessibles à 10 km. L'appartement est à vendre pour la somme de 478400 € FAI N'hésitez pas à prendre contact avec Monsieur Tenzin Choegyal au 06 61 64 61 19 A visiter rapidement!! DPE (D). Honoraires à la charge de vendeur. Pour visiter et vous accompagner dans votre projet, contactez TTCH IMMOBILIER, Selon l'article L.561.5 du Code Monétaire et Financier, pour l'organisation de la visite, la présentation d'une pièce d'identité vous sera demandée. La présente annonce immobilière a été rédigée sous la responsabilité éditoriale Agence en immobilier TTCH immobilier (sans détention de fonds), immatriculé au RSAC de Paris sous le numéro 938550688 Carte professionnelle Transactions sur immeubles et fonds de commerce (T) n°CPI75012025000000041 délivrée par la CCI de paris, Garantie Financière : Transaction sur immeubles et fonds de commerce Non détention de fonds, GALIAN ASSURANCES, 89 RUE de la Boétie, 75008 PARIS, Montant de la garantie : 120000€ Assurance:Transaction sur immeubles et fonds de commerce GALIAN-SMABTP 89 RUE La Boétie 75008 PARIS Assurance:Transaction sur immeubles et fonds de commerce GALIAN-SMABTP 89 RUE La Boétie 75008 PARIS

Caractéristiques de ce bien

  • Surface 57,47 m²
  • carrez 58,30 m²
  • séjour 15,63 m²
  • 2 chambre(s)
  • 1 salle(s) de bain
  • 1 salle(s) d'eau
  • construit en 1949
  • cuisine séparée (équipée)
  • Chauffage individuel : chaudière (gaz)
  • exposition Est-Ouest
  • 3 niveau(x)
  • 3ème étage
  • 5 étage(s)
  • cave

Diagnostics énergétiques

Consommation énergétique
A B C D E F G
Emission de gaz à effet de serre
A B C D E F G

Montant estimé des dépenses annuelles d'énergie pour un usage standard est compris entre 990 € et 1 390 € . Prix moyens des énergies indexés sur les années 2021, 2022 et 2023 (abonnements compris).

Informations financières

Prix de vente 478 400 € Les honoraires d'agence seront intégralement à la charge du vendeur
Taxe foncière annuelle 1 241 €

Informations de copropriété

Copropriété Oui
Nombre de lots 10
Quote part annuelle des charges 2 124 €
Plan de sauvegarde Non
Statut du syndic Pas de procédure en cours

Autour du bien

  • Commerces et santé
  • Loisirs
  • Ecoles
  • Transports
  • Pratique

Calcul des mensualités

* Champs obligatoires